Legend:
New Listing
Open House
Virtual Tour
Under Contract
6807 Cloudscape Way Hamilton Twp OH 45039
Listing Information
Price $235,000
Listing Number 1860829

Driving Directions
ST RT 48 to Grandin, L on Striker, R on Miami Bluffs, R on Trail Crossing, R on Adena, R on Cloudscape.

View Property on Map
Agent Remarks
Bright, open, and move-in ready! This 2-bedroom, 2-bath condo in sought-after Adena at Miami Bluffs offers an inviting open floor plan with vaulted ceilings, fresh paint, and newer carpet. Relax on your private balcony or take advantage of all the community has to offer: pool, clubhouse, tennis courts, and walking trails. HOA includes water, trash, and all amenities. Low-maintenance living in a vibrant, active neighborhood!

General Information
Property TypeResidential
StyleCondominium
CountyWarren
SubdivisionHamilton Twp.
Zip Code45039
School DistrictLittle Miami Local S
Listing Number1860829
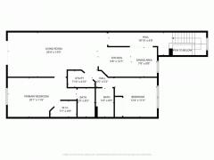
Bedroom Information
Beds2
Master Bedroom 17 x 12 L: 2
Bedroom 2 11 x 10 L: 2
Bathroom Information
Baths2.0


Property Features
BasementNone
GarageBuilt in, Garage Detached
Cars1
ParkingOff Street, Driveway
WindowsVinyl
HeatingElectric, Forced Air
CoolingCentral Air
Additional Information
LevelsTwo
ConstructionBrick, Aluminum Siding
ArchitectureTransitional
GasNone
WaterPublic
SewerPublic Sewer
FoundationSlab
OccupancyAt Closing
Semi-Annual Taxes$1,504.00
Room Information
Rooms6
Entry 5 x 5 L:
Living 17 x 13 L: 2
Dining 11 x 10 L: 2
Kitchen 10 x 10 L: 1
Breakfast 8 x 8 L: 2
Laundry 8 x 6 L: 2


Additional Features
Entry FeaturesLaminate Floor, Open Foyer
Living Room FeaturesWall-to-Wall Carpet, Walkout
Dining Room FeaturesWW Carpet, Chandelier
Kitchen FeaturesCounter Bar, Laminate Floor, Eat-In, Wood Cabinets
AppliancesOven/Range, Dishwasher, Refrigerator, Microwave, Garbage Disposal
Other FeaturesCable, Ceiling Fan

Request more info about this property:





This listing courtesy of Jeri M Vickers (513-504-7196), Coldwell Banker Realty (513-891-8500). All Information is believed accurate, but is NOT guaranteed.
The data relating to the real estate for sale on this web site comes in part from the Broker Reciprocity program of the MLS of Greater Cincinnati, Inc. Real estate listings held by brokerage firms other than Cincinnati Condo Connection are marked with the Broker Reciprocity logo or Broker Reciprocity house icon. The properties displayed may not be all the properties available through Broker Reciprocity.